Lighting Design for Industrial Spaces
Get Your Custom Lighting Plan With Product Recommendations
What to Expect When Requesting a Lighting Plan
Our Customers
We Offer Lighting Design for These Industrial Spaces
- Construction Sites
- Factories
- Hazardous Locations
- High Masts and Shipyards
- Oil Refineries
- Paint Booths
- Perimeter Security
- Power Plants and Substations

Frequently Asked Questions
What is Lighting Design for Industrial Spaces?
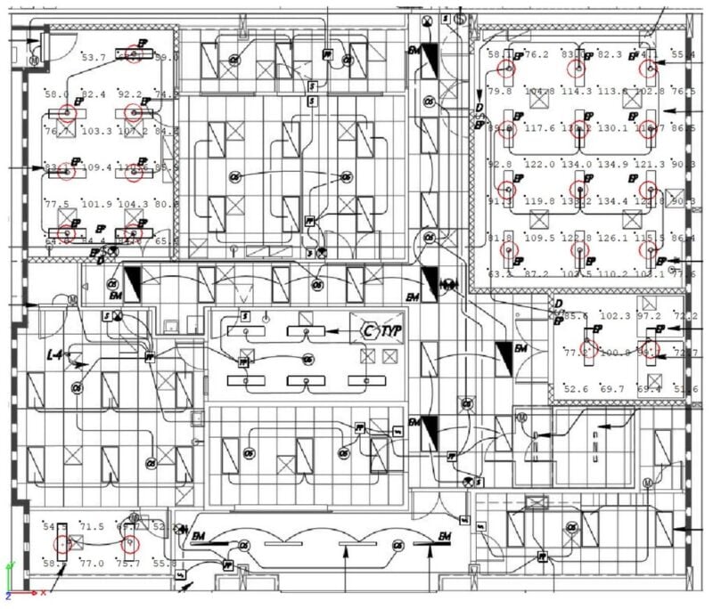
Lighting Design for Industrial Spaces is a process of modeling spaces with rugged LED lighting using professional lighting plan software. The areas can use indoor lighting or outdoor lighting, depending on your facility’s needs. We create a detailed visual report showing optimal light levels, fixture placement, and energy efficiency calculations for LEDs like UFO high bays. Our outdoor industrial lighting plans cover high mast and security lighting to ensure proper illumination. This design allows you to select the correct lighting fixtures before purchase, ensuring maximum performance and cost savings.
What are the Typical Lighting Standards for Industrial Facilities?
Industrial lighting standards range from 10 to 50 foot candles, depending on your specific industry and application. Manufacturing floors typically require 30-50 foot candles, while storage areas need 10-20 foot candles. Task-specific areas like inspection stations may need 75-100+ foot candles. We recommend professional lighting design calculations rather than general guidelines to ensure OSHA compliance and optimal performance.

How Many Lumens Per Square Foot Do You Need for Industrial Areas?
One lumen per square foot equals one foot candle, making conversion straightforward. Most industrial spaces require 20-50 lumens per square foot for general areas, with precision work areas needing 75+ lumens per square foot. Our lighting design calculations determine exact requirements based on your specific industrial operations and safety standards.
How Do You Calculate Foot Candles for Industrial Fixtures?
We start by creating a professional lighting plan using industry-standard software. This provides a visual foot candle report with measurements at specific points across your industrial space. The plan includes average foot candle calculations and light uniformity ratios to ensure consistent illumination throughout your facility.
How Do You Calculate the Ideal Lighting Design for Industrial Spaces?
We use AGI32 lighting design software to create a precise 3D model of your industrial space. Our certified designers input your facility dimensions, ceiling heights, and specific lighting requirements. The software calculates optimal fixture placement, quantities, and specifications to meet your performance and budget goals.

Are There OSHA Lighting Requirements for Industrial Spaces?
Yes, OSHA mandates minimum lighting levels for industrial workplaces to ensure worker safety. Requirements vary by industry and task type, with general industrial areas needing a minimum of 10 foot candles. Specific applications like welding, inspection, or material handling have higher requirements. Our lighting plans ensure full OSHA compliance for your location and industry.
How Much Money Can a Professional Lighting Plan Save Me?
A professional lighting plan typically saves 15-30% on total project costs by preventing over-lighting and fixture waste. We’ve seen clients avoid purchasing 20-40% more fixtures than needed through proper design. The plan also maximizes energy efficiency, reducing operating costs by up to 60% compared to traditional lighting systems.
What Information Do You Need to Create My Industrial Lighting Plan?
We need your facility’s dimensions and ceiling heights, current or planned layout, and specific lighting requirements or industry standards. Photos or architectural drawings help create accurate models. We also consider your budget parameters, energy efficiency goals, and any special requirements like emergency lighting or hazardous area classifications.
How Long Does It Take to Complete an Industrial Lighting Design?
Most industrial lighting plans are completed within 3-5 business days after receiving your facility information. Complex facilities or those requiring special calculations may take 7-10 business days. Rush services are available for urgent projects. You’ ‘ll receive a comprehensive photometric report with fixture specifications, layout drawings, and energy calculations.